圆盘给料机简介
圆盘给料机也叫圆盘给矿机,可分为吊式和座式,轻型和重型,敞开和封闭等分类,是一种选矿用给矿设备。
圆盘式给料机是适用于20mm以下粉矿的给料设备,主要供给选煤、选矿、烧结、电力、建材等行业中,装在运物料机上的一种附属机械作为运输机给料之用。使用圆盘给料机能够让物料均匀的进入一个设备从而让下一道工序可以正常工作,节省劳动力,而且保护了设备的性能,延长整个生产线设备的使用寿命。圆盘给料机,是选矿设备不可或缺的配套产品。
圆盘给料机特点、
1.结构简单,运行可靠,调节安装方便。
2.装有套筒和刮刀装置调节给料量
3.重量轻、体积小、工作可靠、寿命长、维护保养方便。
4.最大给料量可达100-200吨/小时
5.采用蜗轮蜗杆减速器设计,承载能力大,传动效率高。
6.侧衬板、斜衬板与底板之间留缝可调,能比较准确地控制留缝大小,大大减少了漏料。
工作原理动画视频

吊式圆盘给料机工作原理动画

座式圆盘给料机工作原理动画
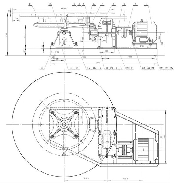
圆盘给料机,是由电动机直接驱动减速机构减速后,由减速输出轴直接输出动力,并直接驱动着圆盘作每分钟5-55m的边缘线速度的低速(0.7~10 r/min)转动,通过卸料刮刀把料筒和圆盘间隙中溢出的≤50mm颗粒或粉状物料划落在给料机下面不同的输送设备上,完成设计流程所需要的给配料作业。
新乡市华维机械设备有限公司 | |
| 联系人: | 李经理 |
| 联系电话: | 0373-2517805 |
| 手机: | 15037380577 |
| 传真: | 0373-2517805 |
| 联系地址: | 新乡市工业园 |
| 电子邮箱: | xxhwjixie@163.com |
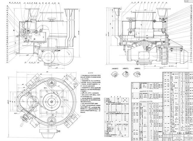
圆盘给料机结构图纸

吊式圆盘给料机结构图纸

kr座式圆盘给料机结构图纸
圆盘给料机由驱动装置、给料机本体、计量用带式输送机和计量装置组成,圆盘给料机和带式输送机由一套驱动装置驱动,该驱动装置的电磁离合器具有实现给料机的开、停和兼有功能转换的作用,圆盘给料机的主要功能是给其他设备提供料物供应,使用圆盘给料机能够让物料均匀的进入一个设备从而让下一道工序可以正常工作,节省劳动力,而且保护了设备的性能,延长整个生产线设备的使用寿命。
