次进风及立式安装的大叶轮转子的强制型分级机。工作时物料在引风机引力的作用下由下筒身进入,外界一次风与物料充分混合,使粒子得以充分分散,并上升至分级区,由于分级叶轮转子的高速旋转,粒子即受到分级叶轮旋转产生的离心力,又受到引风机引力产生的向心力,当粒子受到的离心力大于向心力,分级径以上的粗粒子被甩到筒体内壁失速沿壁面下滑,外界二次风通过均匀分布在锥体上的进风口进入,对粗粒子进行产生风筛作用将混杂或粘附于粗料中的细粉分离于净,分离后的粗料由卸料装置收集排出分级机,分级径以下的细粉随气固二相流进入旋风收集器、脉冲除尘器被收集下来,净化后的气体由引风机排出。
主要特点:
1、分级机结构进行了特殊设计,几乎截止所有大颗粒,分级精度高、大颗粒控制严。
2、分级点通过分级叶轮转速和引风机风量自由调整,以取得所需产品,分级范围广。
3、采用低转速立式单叶轮分级结构,物料流场稳定,设备处理量大,分级效率高。
4、可采用多级串联结构,可同时分级出几个粒度段的产品,获得理想的粒度分布。
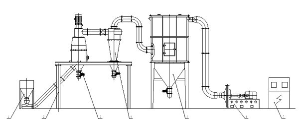
工艺流程图:



1、料仓 2、操作平台 3、分级机 4、旋风收集器
5、脉冲除尘器 6、高压引风机 7、电控柜
规格参数:
规格型号 | 处理量(kg) | 分级效率(%) | 产品粒度(um) | 配套功率(kw) |
FJ350 | 500~1000 |
70~90
|
D97=5~45 | 30 |
FJ400 | 800~2500 | 50 | ||
FJ450 | 2000~4000 | 75 | ||
FJ550 | 4000~7800 | 112 | ||
FJ650 | 6500~12000 | 140 | ||
FJ800 | 8000~17000 | 169 | ||
FJ900 | 10000~22000 | 205 | ||
FJ1000 | 13000~26000 | 240 |

