产品描述:
单缸液压圆锥破碎机在破碎机械中技术含量较高,具有处理量大、自动化程度高、节能等特点。它逐步取代了传统的复摆颚式破碎机和弹簧圆锥破碎机的机配。山宝 DY、DYS 系列圆锥破为单液压缸,底部装有一个液压保护装置的圆锥破碎机。排料口调整方式是通过主轴上下浮动来调整破碎圆锥部位置,从而达到调整排料口大小的目的。DY、DYS 系列圆锥破碎机是一种单缸液压圆锥破碎机,主要用于抗压强度小于 300Mpa,破碎中等和中等以上硬度的各种矿石和岩石 ,广泛应用与冶金工业、建材工业、筑路工业、化学工业。
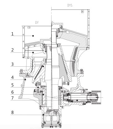
主要部件名称:
1. 供料装置 2.上机架部 3. 破碎圆锥部 4.下机架部 5.密封部 6.偏心套部 7.传动部 8.液压缸部

产品特点:
◎使用层压破碎原理,粒形好
◎防尘结构的应用和液压保护装置
◎采用弧齿锥齿轮延长齿轮使用寿命
◎多种偏心距的选择和腔型多样性
◎采用PLC控制


