2024年11月2日,在双方项目负责人的见证下,华通粉体“盛屯新能源12万吨磷酸铁干燥粉碎及输送项目”开工仪式胜利举行。

开工仪式现场
在新能源材料的浪潮中,磷酸铁行业正迎来前所未有的发展机遇。随着全球对清洁能源的重视和新能源汽车的迅猛发展,磷酸铁作为关键材料之一,其市场需求正快速增长。在此行业背景下,华通粉体与盛屯新能源的合作,无疑是磷酸铁行业发展史上的又一重要里程碑。
项目概况:
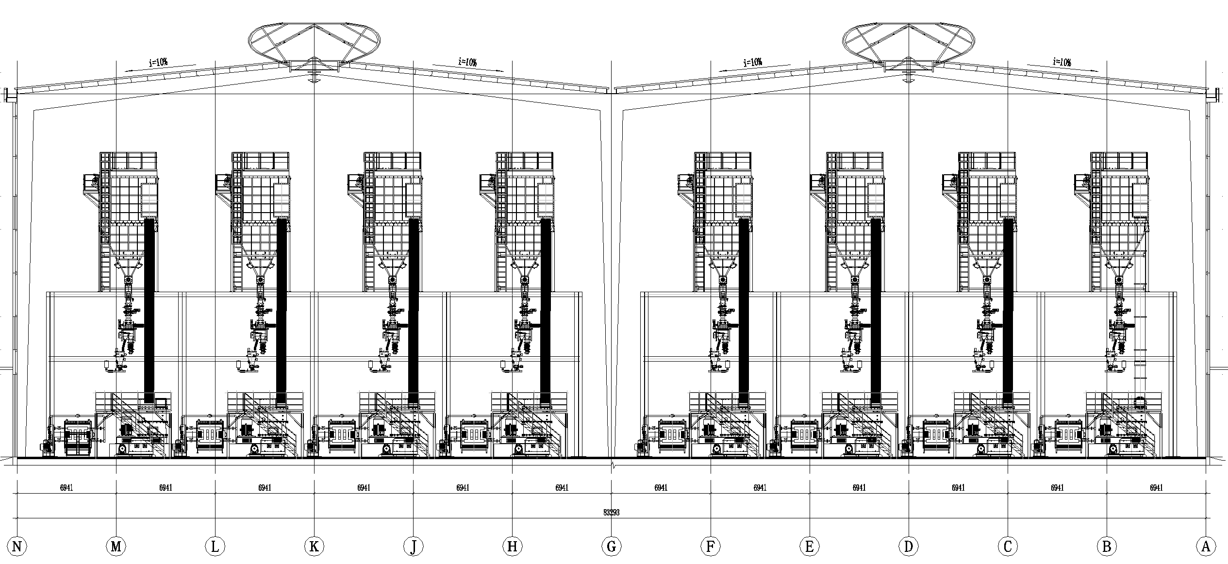
盛屯新能源12万吨磷酸铁干燥粉碎及输送项目共分为8条二水磷酸铁碟巢磨DCM1500烘干粉碎生产线和4条无水磷酸铁钉碟磨粉碎、输送、筛分、除磁、包装生产线。整个产线按生产工艺流程走向设计和配置,极大地减少了物料倒运次数和运距,保障了生产安全、系统运行以及产能需求。

项目产线布局图
项目优势:
1、烘干粉碎效果好
含水率30~50%的滤饼进入磨机烘干后,二水磷酸铁表面水降低至1~2%且不烧失结晶水,另粉碎后粒径可达D50:2~6um。
2、磁性异物少
整机与物料接触表面均衬有非金属涂层,如95氧化铝陶瓷、碳化钨、氟材质,可根据不同物料进行选配不同涂层,有效减少磁性及金属异物的产生。
3、节能环保
整产线采用闭式循环负压输送系统,避免了物料与外界的接触,极大地提高了物料质量和保护了生产环境,满足最严苛的环保排放标准。
4、智能控制系统
每条生产线可实现全自动化方式操作,系统所有联锁控制点采用硬接点的方式直接接入DCS总控系统,同时,整套生产线具备自检、故障诊断、故障弱化等功能,在出现故障时,能得到快速、精准的维护。

开工仪式现场
此次盛屯新能源与华通粉体的合作,是双方在新能源材料领域深度合作的延续。双方均期待通过此次合作,共同推动磷酸铁行业的技术创新和产业升级,为实现碳达峰和碳中和的目标贡献力量。
