日前,增城区新塘镇首宗“五证联发”产业项目“鸿凯智能湾区总部基地——湾区新能源汽车锂电池高端装备项目”(以下简称鸿凯项目),完成竣工验收并投入使用。这标志着增城区委区政府在优化投资营商环境、创新惠企利民举措一个新的里程碑,本着政企融合理念,为企业提供“保姆式”服务,为提升新质生产力跑出增城发展“新速度”。
鸿凯项目位于增城区新塘镇荔新大道南侧,广园路北侧,贴临增城开发区、新塘客运站。交通条件优越,周边配套齐全。作为新塘镇首宗获得“五证联发”的产业项目,项目实现了“拿地即拿证”“拿证即开工”的新型企服模式。
(注:“五证联发”是指广州市规划和自然资源局增城区分局、增城区住房和城乡建设局两部门核发的建设用地规划许可证、人防工程报建、建设工程规划许可证、建筑工程施工许可证和不动产权证等五证。)
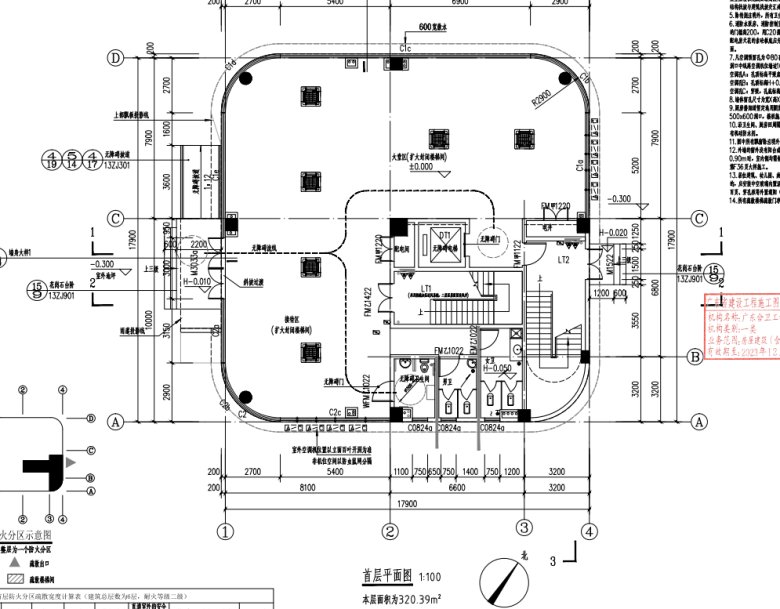
本项目规划用地面积为7.5亩,建筑面积1.88万平方米,主要为一栋研发大楼和一栋厂房。其中研发大楼为六层,功能包括研发、销售、展览、金融、人才培训等,厂房为八层,主要为生产车间用途。

效果图
一、方案创新、用心设计

项目航拍图
鸿凯智能以其先进的智能装备和智能工厂整体解决方案赋能新能源产业,享誉业界。城乡院/图鉴公司建筑设计部作为鸿凯项目设计单位,主动担当作为,从介入项目开始,组织有经验的各专业设计师成立项目设计团队。通过对鸿凯的全面了解,明确其在产业、技术等方面所具有的独特优势和作用,在设计上充分体现项目科技感和现代感,具有鲜明的时代特色。
通过简明的色彩、线条勾勒出时尚与明快的节奏感,其中厂房方正稳重、四平八稳;研发大楼层次明亮、圆润庄重。一方一圆,尽显和谐布局。
二、科学布局、空间共享

室内空间
根据项目本身及功能上的需求
研发大楼采用既开放又独立相结合原则
进行平面布局设计
首层分为大堂区域和接待区域两大块,并融合为扩大封闭楼梯间,既满足大堂布置需求也保证安全合理的疏散要求。

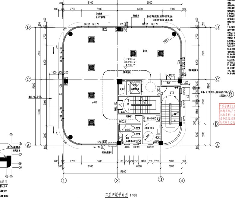
二至四层为满足开放式办公需求,采用大开间布置、注重空间共享,且结合落地玻璃窗办公视野更为开拓。

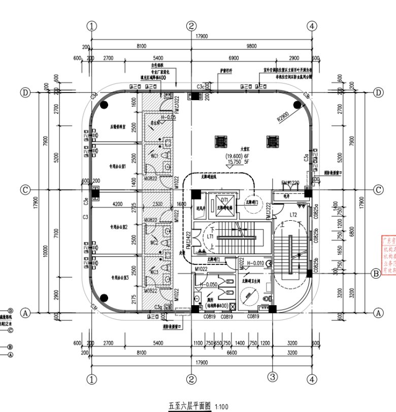
五至六层为独立分隔办公区域,体现办公的私密性。总之,研发大楼在布局方面体现动静分明,流线顺畅,合理利用和提高资源空间利用效率。

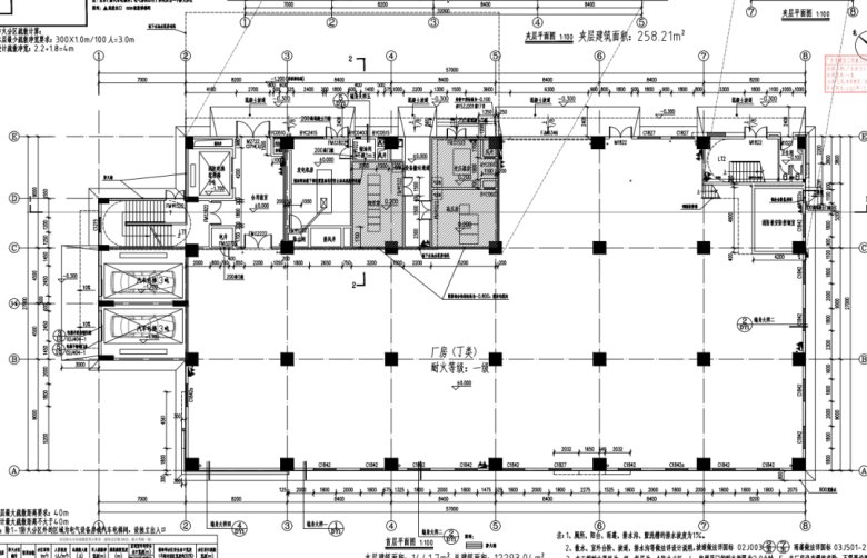
根据鸿凯项目生产工艺及流程性质要求,厂房设计布局采用大空间,设备用房在首层增加夹层,综合利用厂房有限资源空间。

鸿凯项目整体上小巧精致,功能完善,且由其本身具备完善的产业生产服务体系决定了在布局方面特点要求。从整体外观设计到内部空间布局,从材料选择到施工工艺,每一个细节都经过深思熟虑,设计上的审慎和材料、施工上的统一,保证项目在施工中符合设计要求。体现设计效果且传递企业的品牌信息,塑造企业形象。
三、设计赋能,服务创新
项目从规划落地到项目报建完成只用了三个工作日,整个设计阶段从方案落实(含修规设计、工程估算、三维数据模型)、初步设计(含概算)、施工设计(含BIM和装配式等设计、施工图审查)只用45个日历天,大大缩减了项目的设计周期,推进项目的实施。在每一个阶段都跟业主实现全过程无缝对接,及时解决方案和设计中存在问题。
在施工期间,建筑设计部成立设计后服务团队,在建筑材料进场、基础结构施工、机电设备安装方面都进行有效监控设计质量。当施工单位遇到设计问题时,设计后服务团队随传随到,解决存在问题。
整个项目将绿色、环保的理念融入到设计中,注重节能减排、海绵城市等方面的考量,避免浪费和冲突,同时考虑与周边环境的协调发展,致力于打造符合可持续发展的产业项目。
当今产业转型升级快速迭代,城乡院/图鉴公司主动靠前服务,以陪伴式设计为投资业主提供“拿地即拿证”“拿证即开工”的新型企服模式,助力投资业主高质高效完成建设,实现经济效益与环境效益的双重提升。

获赠锦旗
文章来源:增城规划与测绘
